首頁
關於我們
作品總覽
商業空間
住宅空間
最新消息
常見問題
聯絡我們
Select Page
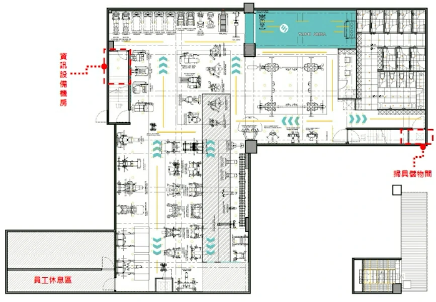
台北市松山區八德路三路
連鎖健身房
返回 商業空間
聯絡我們